Gonsberg Lounge Veranstaltungshalle

Neubau Veranstaltungshalle mit Gastronomie Gonsberg Lounge Mainz

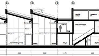
Neubau einer nichtunterkellerten, zweigeschossigen Veranstaltungshalle mit Gastronomie in Massivbauweise und zusätzlichem Staffelgeschoss (Stahlkonstruktion, Technik: Lüftungszentrale) auf dem Gonsberg Campus. Das L-förmige Gebäude weist eine Maximalabmessung von 31,0 x 22,5 m auf. Das Dach der Versammlungshalle wird mithilfe eines Holztragwerks (Spannweite 12,3 m) überspannt. Die Gründung erfolgt auf einer 40 cm dicken, elastisch gebetteten Bodenplatte. Die Nutzungseinheiten bzw. brandschutztechnisch separierten Bereiche gliedern sich im vorliegend betrachteten Gebäude wie folgt: Versammlungsraum EG, Küche und Gastronomiebereich sowie Foyer. Das Brandschutzkonzept berücksichtigt die Gebäudeklasse 3, Sonderbau nach LBauO, sowie die Versammlungsstättenverordnung (VStättVO).


Bauherr
Gonsberg Lounge GmbH & Co. KG,
Mainz
Architekt
Formaat Architekten PartGmbB
Baujahr
2020-2021